Riad, Königreich Saudi Arabien
Neubau Assila Investments Headquarter & Dewaniya in Riad, Königreich Saudi-Arabien
Fertigstellung: 2022
Größe: Grundstück 6.470 qm, BGF 12.230 qm
DAM Preis 2025 (Deutsches Architekturmuseum) – Nominierung
Mehr Infos
In Riad, der Hauptstadt Saudi-Arabiens, steht das markante Assila Investments Headquarter im Westen der Stadt. In unmittelbarer Nähe zum Diplomatenviertel Al Safarat befindet sich das Grundstück mit direktem Zugang zur King Khalid Road. Diese Lage garantiert eine hervorragende Erreichbarkeit für Besucher und Mitarbeiter des Assila Investments Headquarter.
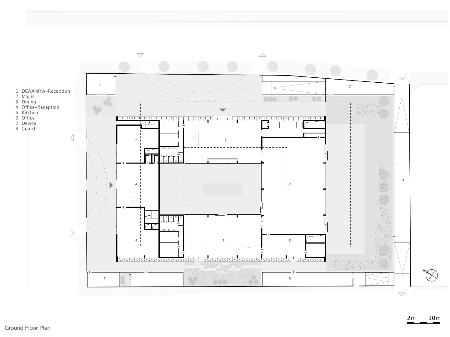
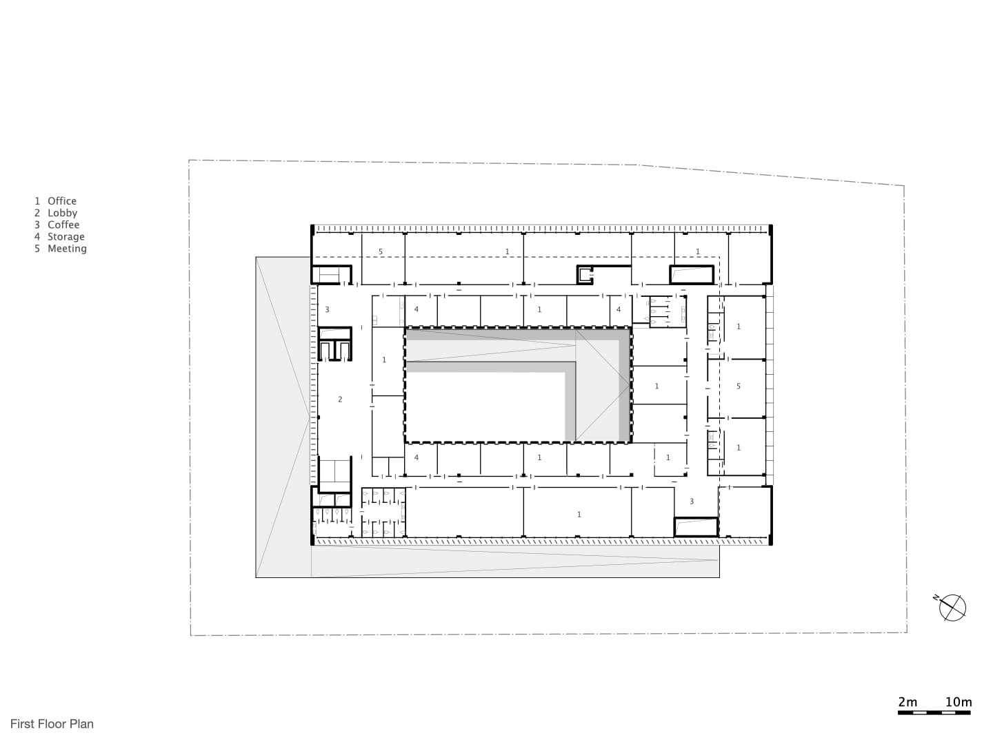
Darüber hinaus teilt sich das Gebäude in zwei Hauptfunktionen: Verwaltung mit einer Dewaniya und Büros, ergänzt durch eine großzügige Tiefgarage. Die Architektur orientiert sich an der rechteckigen Form des Grundstücks und umfasst zwei Vollgeschosse sowie ein Zwischen- und Untergeschoss. Dabei berücksichtigt das Design lokale klimatische Bedingungen und traditionelle Bauweisen, weshalb ein zentraler Innenhof für natürliche Belüftung und Tageslicht sorgt.
Außerdem wurde das Gebäudevolumen horizontal geteilt und versetzt, sodass der Eingang zur Dewaniya im Erdgeschoss natürlich verschattet wird. Die Büros und Besprechungsräume im Obergeschoss bieten einen offenen Blick in den Innenhof.
Die Fassaden sind mit lokaltypischen Sandsteinplatten in verschiedenen Farbtönen verkleidet. Vertikale Lamellen dienen als effektiver Sonnenschutz und strukturieren zugleich die Glasfassaden. Die Außenanlagen kombinieren Steinplatten, Wüstengärten und grüne Rasenflächen, die den Charakter des Headquarters harmonisch abrunden.
Bauherr: Assila Investments
Interior: Wilson Associates
Fotos : Laurian Ghinitoiu


















