Brandenburg, Deutschland
Kostengünstiges Bauen mit Holz Haus W im Landkreis Oberhavel
Fertigstellung 2014
Größe: BGF Gebäude: 133,5 qm, Terrasse: 47,0 qm
Mehr Infos
Haus W erfüllt den Wunsch einer deutsch-russischen Musikerfamilie, die an renommierten Berliner Konzerthäusern spielt, sich zurückgezogen in der Natur niederzulassen. Dafür erwarben sie ein beeindruckendes, etwa 6.500 qm großes Wiesengrundstück in einem Dorf im Landkreis Oberhavel, Brandenburg, ca. 75 km nördlich von Berlin. Die Umgebung besticht durch eine einzigartige Seenlandschaft, umgeben von dichten Wäldern, weitläufigen Wiesen und Feldern.
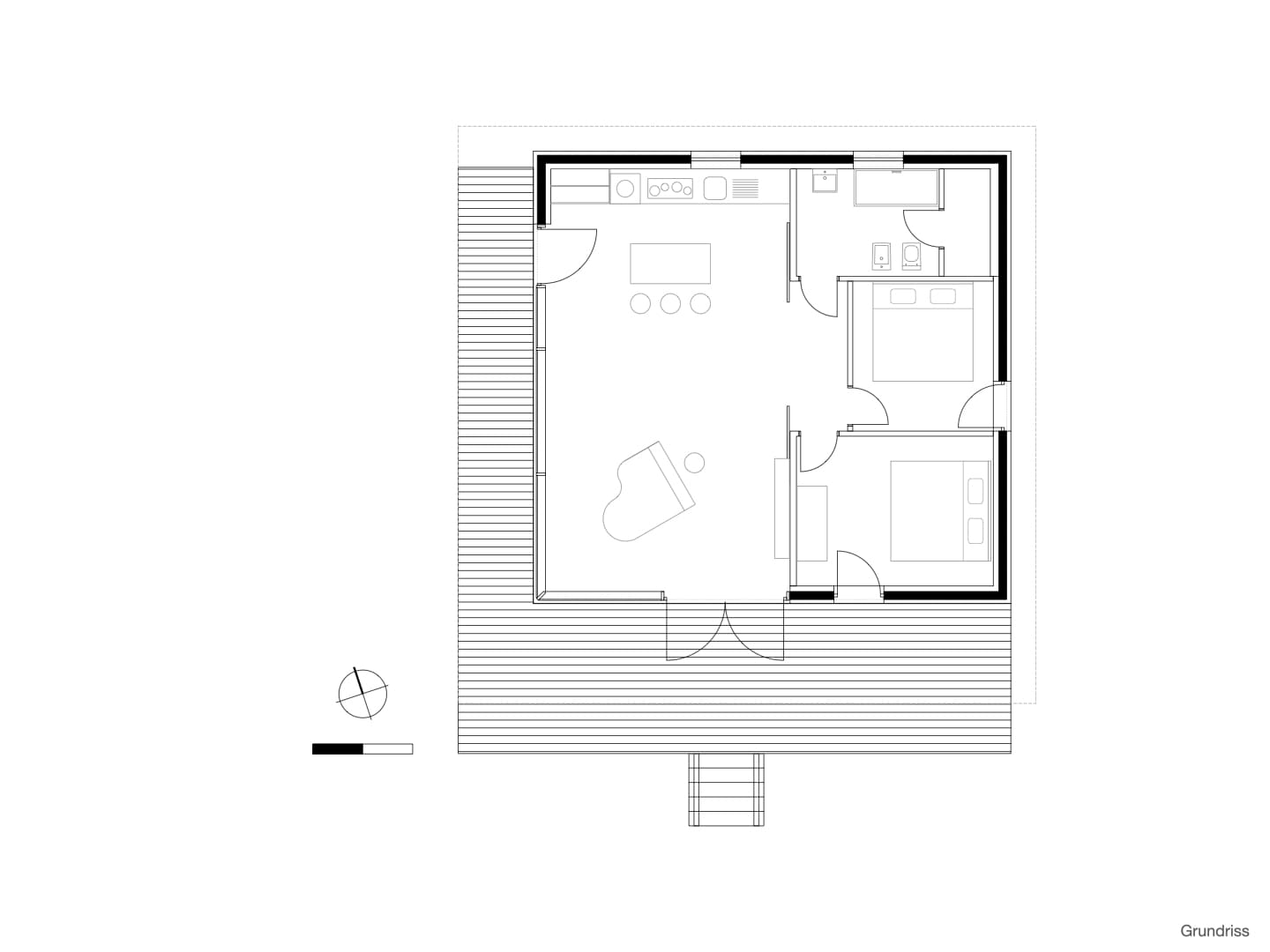
Im Anschluss entstand der Entwurf für Haus W, der die Wünsche der Bauherr_innen nach einem nachhaltigen, kostengünstigen Neubau aus Holz umsetzt. Die Architektur abstrahiert dabei die Form und Funktionalität eines Musikinstruments. Das eingeschossige Gebäude mit Nebengebäude besitzt einen klar gegliederten quadratischen Grundriss. Zum einen gibt es den offenen, extrovertierten Wohn-, Ess- und Küchenbereich, zum anderen den introvertierten, separaten Schlafbereich mit Badezimmer. Durch großzügige Verglasungen verbindet sich der Wohnbereich nahtlos mit der teilweise überdachten, freischwebenden Holzterrasse und dem angrenzenden Naturgarten.
Darüber hinaus basiert die Tragkonstruktion von Haus W auf einem Holzskelettbau mit Brettschichtholz-Unterzügen und Stahlverbindern, ausgeführt auf einer Ortbetonbodenplatte. Die Fassade ist mit einer hinterlüfteten Stülpschalung aus unbehandelten Lärchenbrettern verkleidet, die im Laufe der Zeit silbergrau patiniert. Anthrazitgrau gestrichene Holzfensterrahmen ergänzen das natürliche Erscheinungsbild. Die Wege auf dem Grundstück sind wasserdurchlässig mit offenem Splitt gestaltet.
Abschließend steht Haus W als ein hervorragendes Beispiel für nachhaltiges Bauen in Holzbauweise aus nachwachsenden Rohstoffen. Dabei erfüllt es höchste Ansprüche an eine puristische, energieeffiziente Architektur, die kostengünstig realisiert wurde und die harmonische Verbindung von Wohnen und Natur verkörpert.
Bauherr: privat
Statik: Dipl.-Ing. Hartmut Unterberg
Baufirma: Signumplan GmbH
Fotos: Li Yuanhao










