Hangzhou, China
Neubau eines Kindergarten Yu Hang in Hangzhou, China
Fertigstellung 2018
Größe: Grundstück 2.750 qm, BGF: 1.970qm
Mehr Infos
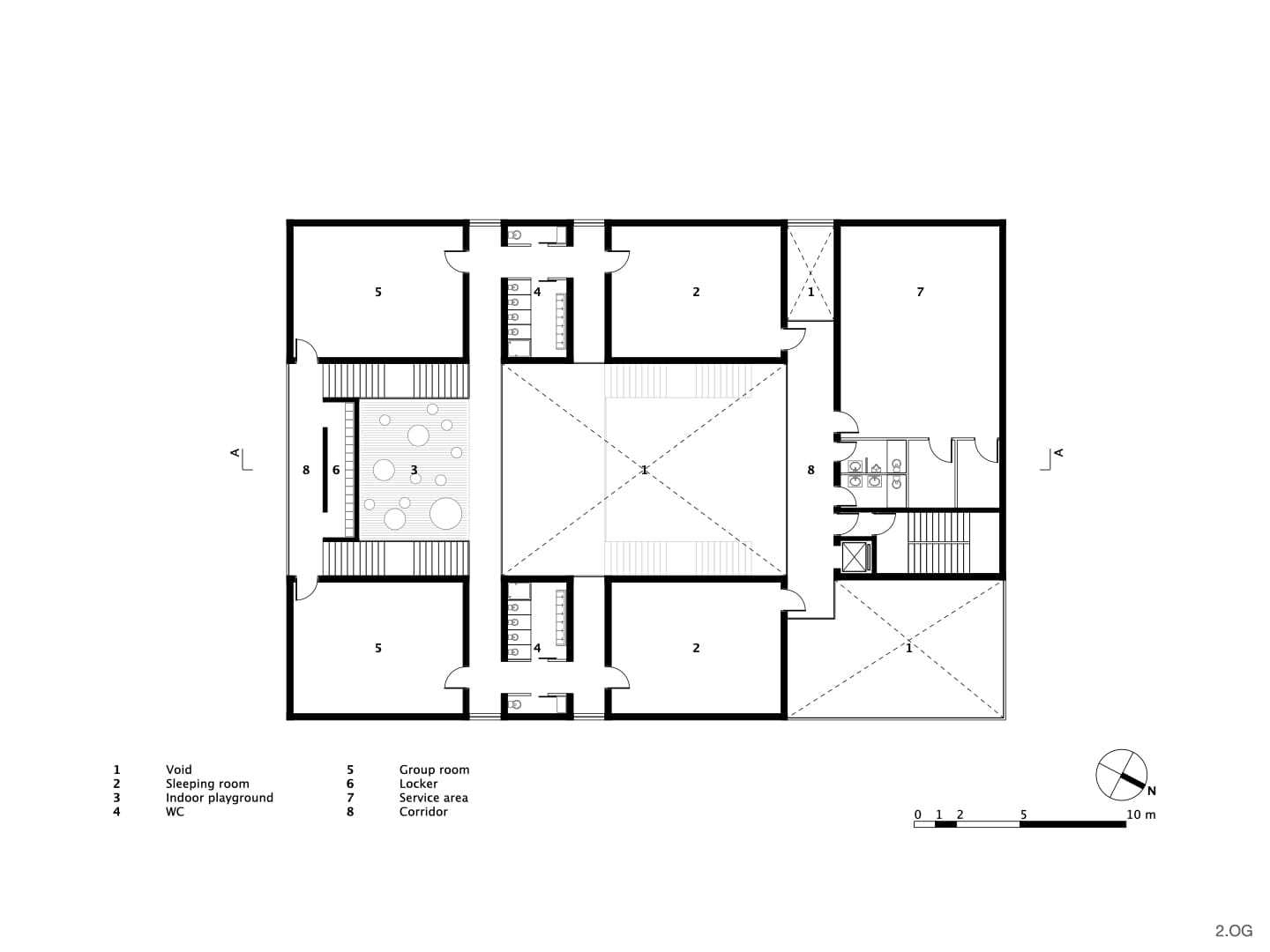
Im Osten der Stadt Hangzhou befindet sich ein moderner Kindergarten, der Teil des neu entstandenen Wohngebietes in Yu Hang ist. Dieses dreigeschossige Gebäude bietet Platz für rund 180 Kinder, die in sechs altersgerechte Gruppen eingeteilt sind. Jeder Gruppe ist ein eigenes Cluster mit separatem Schlafraum, Umkleide- und Badbereich sowie einem Spielraum zugeordnet. Somit fördert die klare Raumstruktur eine funktionale und kindgerechte Betreuung.
Darüber hinaus ist der zentrale Bereich des Gebäudes von den übereinandergestapelten Volumen der Gruppencluster umgeben, während im Norden ein Servicebereich das Gebäude abschließt. Dieser offene Raum erstreckt sich über alle drei Geschosse und wird durch ein großzügiges Glasdach natürlich belichtet. Dadurch entsteht eine helle, freundliche Atmosphäre, die an ein großes Atrium erinnert. Zudem verbinden zwei offene, einläufige Treppen die gestaffelten Ebenen, die vielseitige Möglichkeiten für Aktivitäten, Spiel und Bewegung bieten. So unterstützt die Architektur nicht nur die Betreuung, sondern auch die Förderung der Kinder.
Im Außenbereich setzt sich die Gestaltung mit Sportflächen und Grünanlagen fort, die den Kindern ausreichend Platz zur Bewegung und zum Spielen bieten. Zusätzlich sorgt die Fassade für ein harmonisches Gesamtbild: Sie ist schlicht verputzt, doch durch die Variation von Fensterformaten und farbigen Flächen in den Fensterbereichen entsteht ein lebendiges Erscheinungsbild.
Insgesamt vereint das Gebäude funktionale Raumgestaltung mit klarer, moderner Architektur, die sowohl den Bedürfnissen der Kinder als auch der Betreuungspersonen gerecht wird und sich zugleich harmonisch in das neue Wohngebiet integriert.
Bauherr: Hangzhou Jiahe Real Estate GmbH
Architekt: Peter Ruge Architekten GmbH
Projektpartner: DBH Stadtplanungs GmbH, Hangzhou
Fotos: Yan Binfeng








