Berlin, Deutschland
Neubau von zwei klimapositiven Mehrfamilienhäusern als Hybridkonstruktion mit Holzfassade – Klimapositives Wohnen in Berlin
Fertigstellung: 2021
Gebäude: BGF 4.314 qm
Zertifizierung: TÜV Nord – Netto-Nullemissionsgebäude
Auszeichnung: KlimaschutzPartner Berlin 2021, Gewinner „Erfolgreich realisiertes Projekt“
Mehr Infos
- Klimapositives Gebäude über den gesamten Lebenszyklus
- Negative CO2 Bilanz der absoluten Treibhausgase im Betrieb
- Ausschließliche Nutzung von erneuerbaren Energiequellen: Photovoltaik und Biogas
- Vorreiter des Berliner Klimaschutzgesetzes – Gewinner KlimaschutzPartner Berlin 2021
- Zertifizierung vom TÜV Nord als Netto-Nullemissionsgebäude
- Diversifizierung der Nutzer_innen: Mischung unterschiedlicher Wohnungsgrößen und -typen, auch rollstuhlgerecht, in 42 Mietwohnungen und betreuter Wohngemeinschaft für Menschen mit Behinderung
- Hohe Flächen- und Energieeffizienz durch kompakte, barrierefreie Grundrisse
- Positive Ökobilanz der vorgefertigten Holzhybridfassade und Verwendung ausschließlich unkritischer Baustoffen, begrünte Retentionsdächer
- Optimierte, nutzerfreundliche Haustechnik, Blockheizkraftwerk mit Mieterstrom
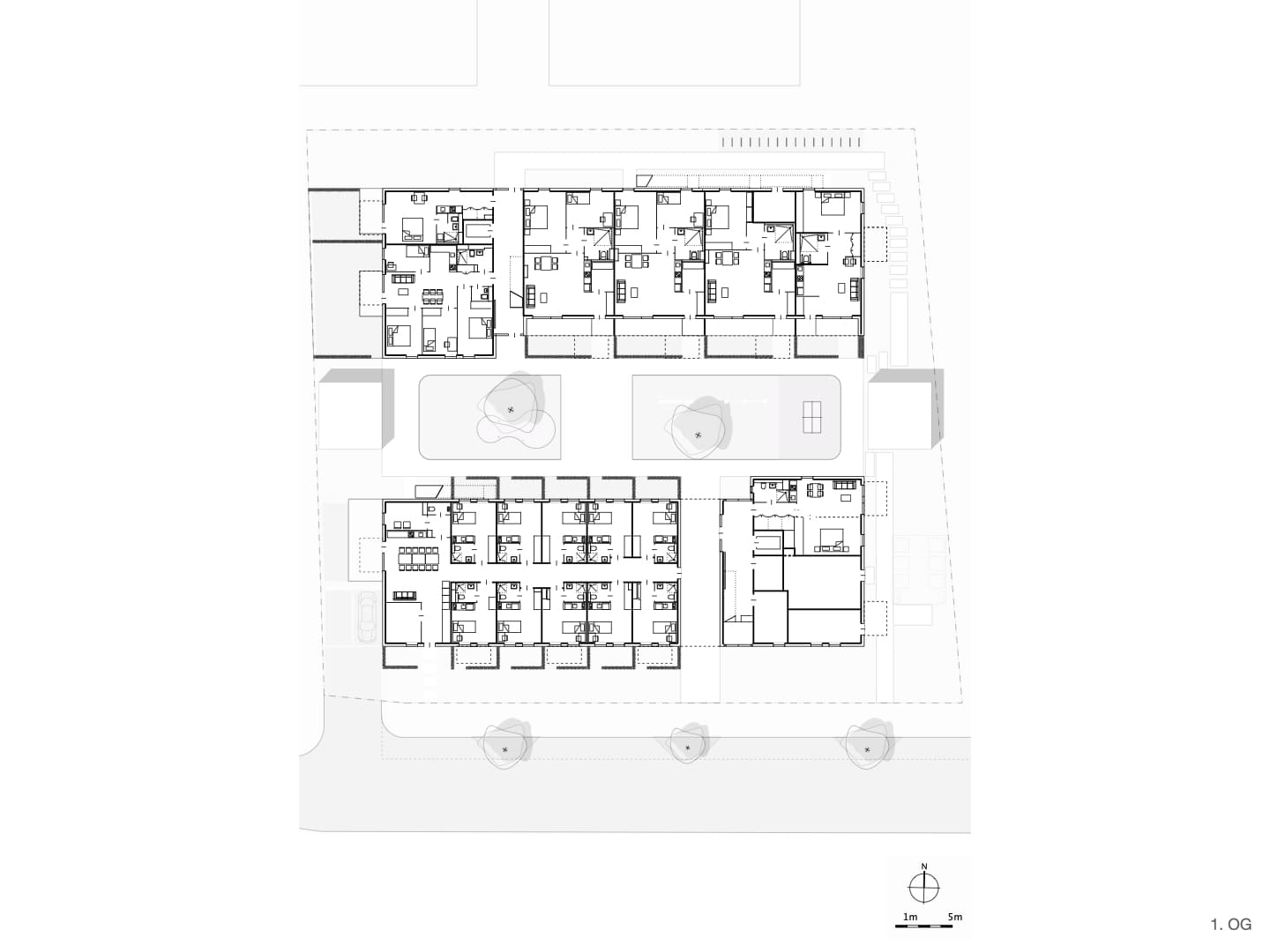
Auf dem Grundstück in der Schleizer Straße entsteht mit Klimapositives Wohnen in Berlin ein zukunftsweisendes Projekt, das nachhaltiges Bauen mit sozialem Anspruch vereint. Zwei klimapositive Neubauten mit je 42,52 m Länge wurden in offener Bauweise rund um einen gemeinschaftlichen Innenhof mit Grünflächen und Spielplatz errichtet – ein Ort der Begegnung.
Das Vorderhaus verfügt über vier Vollgeschosse. Im Erdgeschoss befindet sich eine Cluster-Wohnung für betreutes Wohnen, darüber unterschiedliche Wohnungstypen. Das Gartenhaus mit drei Vollgeschossen und einem Staffelgeschoss wurde ausschließlich für Wohnzwecke geplant. Insgesamt bietet Klimapositives Wohnen in Berlin 42 barrierefreie Mietwohnungen mit 1 bis 11 Zimmern. 20 davon sind vollständig barrierefrei, darunter rollstuhlgerechte Einheiten.
Die Gebäude wurden in Hybridbauweise aus Beton und Holz als Netto-Null-Emissionsgebäude realisiert. Tragende Elemente bestehen aus Ortbeton, Kalksandstein und Betonfertigteilen. Die Obergeschosse erhielten Fassaden aus vorgefertigten Holztafelelementen sowie Holzrahmenfenster mit außenliegendem Sonnenschutz.
Außerdem wird Klimapositives Wohnen in Berlin durch Biogas in Kraft-Wärme-Kopplung und Solarenergie aus Photovoltaikanlagen versorgt – ein starkes Modell für nachhaltiges, energieeffizientes Wohnen in der Hauptstadt.
Bauherr: KlimaGut Immobilien AG
Statik: Ingenieurbüro Marzahn & Rentzsch
TGA: Planungsbüro Dernbach GmbH
Brandschutz: IABU GmbH
Energieberatung: Caala GmbH
Fotos: Dietmar Gust, Matthias Matschewski, Janina Heppner













